Einfamilienhaus Luxemburg
Zeitlose Eleganz – das verspricht das Haus Luxemburg mit seinem Walmdach. Das Erdgeschoss verfügt über einen offenen Wohn-/Ess-/Kochbereich mit angegliedertem Hauswirtschaftsraum sowie einem Gäste-WC. Im Obergeschoss befinden sich Elternschlafzimmer, Badezimmer und zwei Kinderzimmer. Durch die zahlreichen bodentiefen Fenster strömt viel Tageslicht ins Haus um schaffen eine gemütliche Wohnathomsphäre.
Sie wünschen eine Änderung im Grundriss? Sprechen Sie uns an, wir bauen für Sie!
Hinweis: Bilder zeigen Sonderausstattungen
| Wohnfläche: | 127,69 m² |
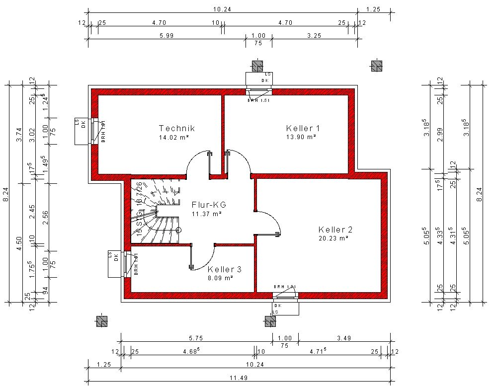
| Aussenmaße: | 11,49x8,24 m |
| Dachform: | Walmdach |
Wohn- und Nutzflächen
| Wohnfläche Erdgeschoss | ||
| Wohnen | 22,76 | m² |
| Essen | 13,88 | m² |
| Diele | 9,80 | m² |
| Kochen | 8,97 | m² |
| HWR | 5,57 | m² |
| WC | 3,03 | m² |
| Summe Erdgeschoss | 64,01 | m² |
| Wohnfläche Obergeschoss | ||
| Eltern | 20,33 | m² |
| Kind 1 | 14,17 | m² |
| Kind 2 | 13,80 | m² |
| Bad | 8,25 | m² |
| Flur | 7,13 | m² |
| Summe Obergeschoss | 63,68 | m² |
| Gesamtwohnfläche | 127,69 | m² |
| Nutzfläche Kellergeschoss | ||
| Keller 2 | 20,23 | m² |
| Technik | 14,02 | m² |
| Keller 1 | 13,90 | m² |
| Flur-KG | 11,37 | m² |
| Keller 3 | 8,09 | m² |
| Summe Nutzfläche | 67,61 | m² |