Doppelhaus Oslo

Mit klassischem Grundriss kommt das Haus Oslo daher. Die vielen bodentiefen Fenster und der Zwerchgiebel strahlen Charme aus und bringen das Sonnenlicht ins Haus. Das Erdgeschoss besteht aus einem Wohn/Essbereich und separater Küche. Angegliedert an die Küche ist ein großzügiger Hauswirtschaftsraum, welcher gleichzeitig als Speisekammer genutzt werden kann. Im Obergeschoss bieten Schlafzimmer, Familienbad und zwei Kinderzimmer Raum zur Entfaltung.

Sie wünschen eine Änderung im Grundriss? Sprechen Sie uns an, wir bauen für Sie!

Hinweis: Bilder zeigen Sonderausstattungen
Wohnfläche: 99,80 m²
Aussenmaße: 11,99 x 5,99 m
Kniestock: 40 cm
Dachform: Satteldach

Grundrissübersicht

Seitenansicht & Schnitte

Weitere Bilder

Wohn- und Nutzflächen

Wohnfläche Erdgeschoss    
Wohnen/Essen 25,86
Kochen 13,02
Diele 8,01
HAR 5,78
WC 2,87
Summe Erdgeschoss 55,54
     
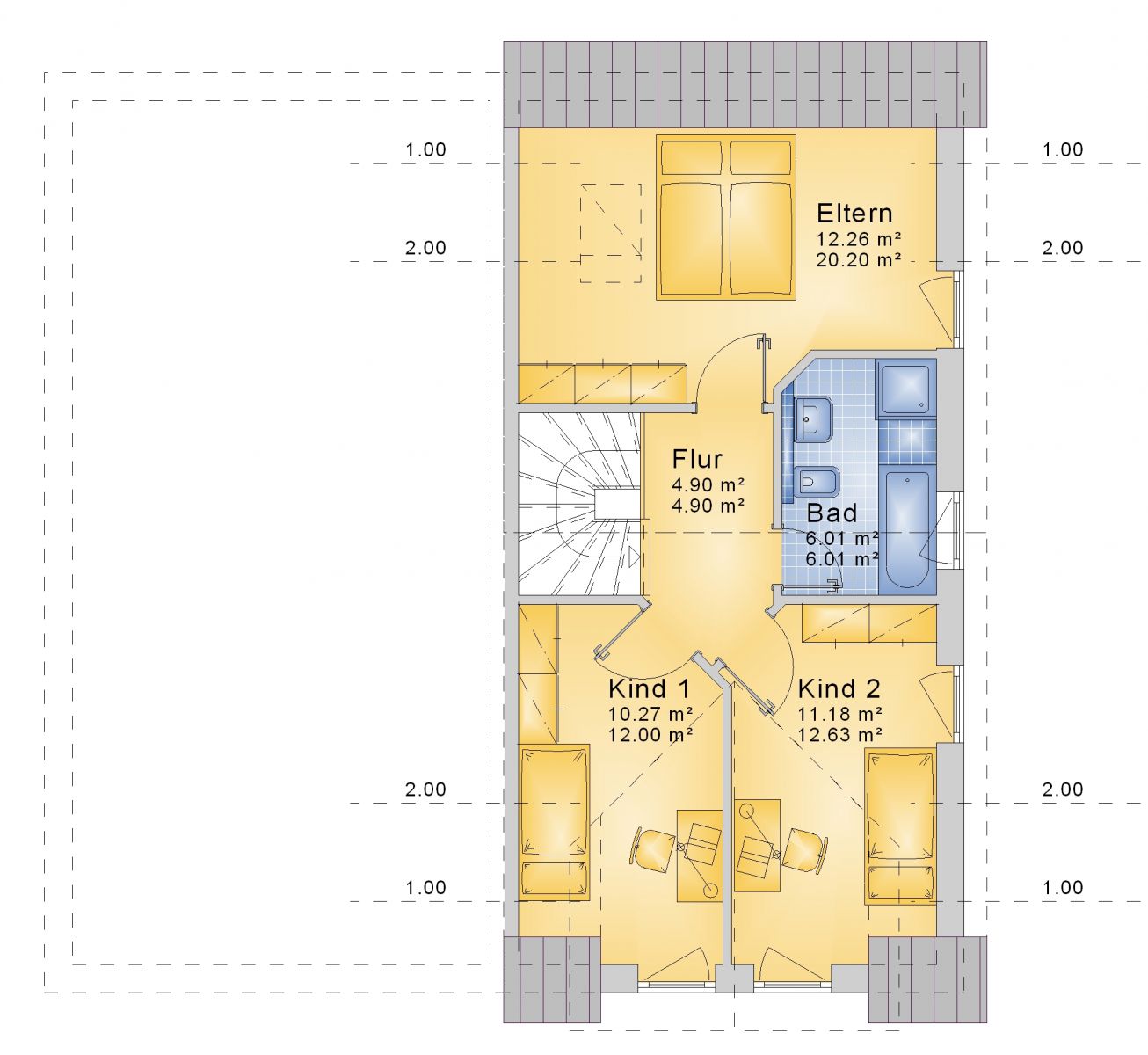
Wohnfläche Dachgeschoss    
Eltern 12,16
Kind 2 11,19
Kind 1 10,00
Bad 6,01
Flur 4,90
Summe Dachgeschoss 44,26
     
Gesamtwohnfläche 99,80
     
Nutzfläche Kellergeschoss    
Keller 1 25,17
Technik 21,13
Flur-KG 7,93
Keller 2 4,61
Summe Nutzfläche 58,84

« zurück

close