Doppelhaus Riad
Im Doppelhaus Riad laden im Erdgeschoss der großzügige, lichtdurchflutete Wohn- und Essbereich zum entspannten Aufenthalt ein. Im Obergeschoss finden bequem zwei Kinderzimmer, Elternschlafzimmer und Familienbad Platz. Durch die volle Raumhöhe in diesem Geschoss bieten sich hier vielfältige Möglichkeiten zur persönlichen Entfaltung.
Wünschen Sie eine Änderung am Grundriss? Sprechen Sie uns an, wir bauen für Sie!
Hinweis: Bilder zeigen Sonderausstattungen
| Wohnfläche: | 112,40 m² |
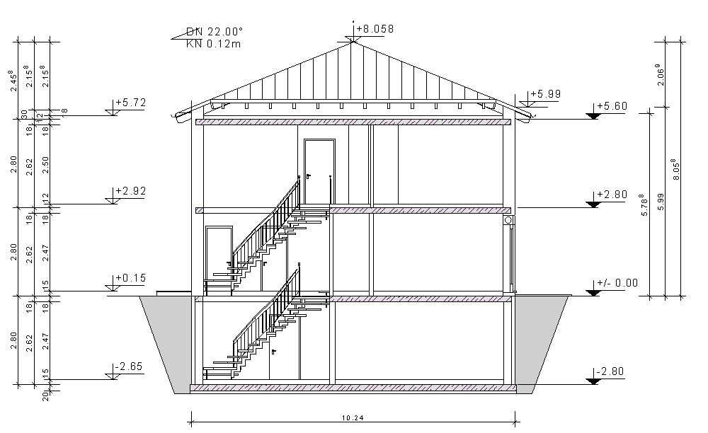
| Aussenmaße: | 6,99 x 10,24 m |
| Dachform: | Walmdach |
Wohn- und Nutzflächen
| Wohnfläche Erdgeschoss | ||
| Wohnen/Essen | 27,85 | m² |
| Kochen | 9,51 | m² |
| Diele | 8,82 | m² |
| HWR | 7,99 | m² |
| WC | 2,03 | m² |
| Summe Erdgeschoss | 56,20 | m² |
| Wohnfläche Obergeschoss | ||
| Eltern | 15,49 | m² |
| Kind 1 | 13,24 | m² |
| Kind 2 | 13,06 | m² |
| Flur | 7,71 | m² |
| Bad | 6,70 | m² |
| Summe Obergeschoss | 56,20 | m² |
| Gesamtwohnfläche | 112,40 | m² |
| Nutzfläche Kellergeschoss | ||
| Keller | 34,28 | m² |
| Technik | 13,35 | m² |
| Flur-KG | 11,98 | m² |
| Summe Nutzfläche | 59,61 | m² |